Trilocale in vendita

Bari, Via Degli Alpini D'Italia
€ 235.000
3 locali 3 locali
108 Mq 108 Mq
2 bagni 2 bagni

Trilocale in vendita

Bari, Via Degli Alpini D'Italia

Descrizione annuncio

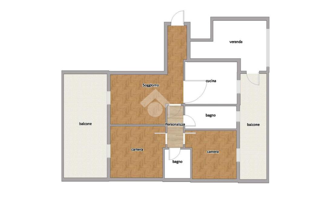
Nel cuore di Bari, in via Degli Alpini d'Italia, si propone in vendita un appartamento signorile situato al primo piano di un edificio con ascensore. L'immobile, di 108 mq, è composto da tre locali ben distribuiti: due camere da letto, un soggiorno spazioso e una cucina abitabile. Completano la proprietà due bagni e una camera aggiuntiva versatile. L'appartamento, ristrutturato nel 2018, si presenta in buono stato e offre il comfort del riscaldamento autonomo. I due balconi terrazzati, di 25 mq complessivi, rappresentano un valore aggiunto, ideali per momenti di relax all'aperto. La presenza di un portiere garantisce sicurezza e praticità. Incluso nella proprietà, un posto auto riservato. Questa soluzione abitativa è perfetta per chi cerca comodità e qualità in una delle zone più apprezzate della città.

La palazzina è inserita in un contesto residenziale molto tranquillo, a pochi passi dai parchi comunali, scuole, attività commerciali, snodi delle tangenziali verso Foggia o Brindisi, fermate dei mezzi pubblici sono a pochi metri di distanza e facilmente raggiungibili.



SE VUOI VISIONARE QUESTO IMMOBILE CONTATTACI AL SEGUENTE NUMERO 0808935739

Se devi vendere anche il tuo immobile affidati ad un team dinamico con esperienza nel mercato di zona, OFFRIAMO CONSULENZE GRATUITE !



Mostra tutto

Nelle vicinanze

Trasporto pubblico Trasporto pubblico
stazione di Bari Parco Sud
stazione di Bari Parco Sud
2,2 Km
Mungivacca
Mungivacca
2,4 Km
9-10-12/
9-10-12/
120 m
2-2/-9-10
2-2/-9-10
120 m
Bari Torre Quetta
Bari Torre Quetta
850 m
Ricariche auto elettriche Ricariche auto elettriche
Eneldrive Centro Commerciale Mongolfiera Japigia
710 m
Eneldrive Renauto
2,0 Km
IKEA Bari | EnelX Fast
2,7 Km
Scuole Scuole
I.T.T.L. Nautico "Caracciolo"
820 m
Scuole
850 m
Centro Studi Polivalente Japigia
990 m
Scuola Media - Giovanni Verga
1,1 Km
Liceo Scientifico Statale Gaetano Salvemini
1,1 Km
Farmacia Farmacia
Farmacia Lozupone
150 m
Farmacia
930 m
Japigia
2,2 Km
Fabbroni
2,3 Km
Rubino
2,5 Km
Ospedali Ospedali
Pronto Soccorso Ospedale Pediatrico Giovanni XXIII
2,8 Km
Ospedale Pediatrico Giovanni XXIII
2,8 Km
Mater Dei
3,0 Km
Supermercati Supermercati
Supermercati
150 m
Penny Market
310 m
Centro commerciale Mongolfiera - Japigia
740 m
Supermercato Eurospin
1,2 Km
Supermercato SIGMA
1,4 Km
Negozi Negozi
Negozi
2,2 Km
Salumeria
2,8 Km
Bar Bar
Bar
90 m
Morisco
2,9 Km
Ristoranti Ristoranti
Pizzeria San Marco
140 m
Pizzeria GM
260 m
Ristoranti
360 m
Assudiest
680 m
Pizzeria Da Nico
1,2 Km
Mostra tutto

Caratteristiche

Rif.:
61110988
Piano:
1 di 5 con ascensore (Piano basso)
Posti auto:
1
Balconi:
2
Camere da letto:
2
Arredamento:
Assente
Mostra tutto
Prezzo Prezzo
€ 235.000
Rata mutuo Rata mutuo
€ 1.095 / mese
Spese annue Spese annue
€ 640
Proponi il tuo prezzoProponi il tuo prezzo

Classe Energetica

G
G
G
G
G
G
G
G
G
EP globale non rinnovabile:
160.00 kW h/m² anno
EP globale rinnovabile:
160.00 kW h/m² anno
EP invernale del fabbricato:
EP estiva del fabbricato:
Anno di costruzione:
1994
Riscaldamento:
Autonomo
Tipo impianto:
A radiatori
Tipo alimentazione:
Metano

Ti interessa visionare l'immobile?

Fissa un appuntamento  Fissa un appuntamento

Richiedi informazioni

Clicca su Leggi per aprire l'informativa
* Questi campi sono obbligatori

Calcola il tuo mutuo

Semplice e senza impegno
Anticipo

( % )
Mutuo

( % )

pochi semplici passi

inserisci i tuoi dati
Questionario completato
Grazie per aver richiesto un appuntamento senza impegno con un nostro Consulente del Credito e Assicurativo.

Hai inserito correttamente tutti i dati necessari e a breve riceverai una e-mail con un link da convalidare per inviare i tuoi dati.
Affiliato
Studio Aurora Sas
Viale Japigia, 30 70126 Bari (BA)

Il nostro staff


  • Pasquale Longo
    Affiliato

  • Gabriele Deflorio
    Collaboratore

  • Giuseppe De Robertis
    Collaboratore

  • Fabio Girone
    Collaboratore

  • Roberto Mastrorosa
    Collaboratore

  • Antonella Terlizzese
    Coordinatrice
Viale Japigia, 30 70126 Bari (BA)
Zona: Japigia
Mostra su mappa
Affiliato
Studio Aurora Sas
Viale Japigia, 30 70126 Bari (BA)

2025 Tecnocasa Franchising S.p.A. - P. IVA 08365160152 - Via Monte Bianco 60/A 20089 Rozzano (MI). Ogni agenzia ha un proprio titolare ed è autonoma. Privacy policy | Policy utilizzo | Cookie policy